img1
progetti infissi
GASTALDELLO SISTEMI

Case History

Case History

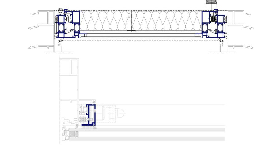
Case History | 610 Lexington

610 Lexington

Certified professionalism


Since 1959, we have been dealing with the design and production of quality profiles for windows, doors, and curtain walls in aluminum with high thermal insulation performance.
Our product designs prioritize energy efficiency, air, water, and structural performance combined with style.
We offer AW certified products here in the United States.
All Gastaldello Sistemi systems are tested according to AW standards.
Our cutting-edge chrome-free paint line will meet the specifications of AAMA coatings.
We also customize the fixtures with two-tone solutions to meet the different internal / external specifications.

« Back to case history
Responsive image